This past term has been a whirlwind of drawing, model-making, and storytelling. Each project pushed me to think about space in new ways; from tiny stair sequences to full-on bathhouses, and taught me how representation itself can be a design tool. Here’s a look back at the projects that shaped my first months in the M.Arch program at the University of British Columbia.
PDF version
Between the Planes
We kicked things off with a deceptively simple challenge: two abstract “planes” on paper. From those lines, we had to invent a building volume with both a public stair and a private stair. No computers allowed — just hand drawings, cardboard models, and lots of tape and glue.
It was all about learning how to read lines as potential walls, voids, or circulation paths. My final model was built in cardboard, with 3D-printed figures to test how bodies would move through the space. It was a crash course in how much you can discover by staying analogue.







Design Media 1 – Diagrams and Perspectives
Finally, we circled back to Between the Planes with a representational twist. This time, the focus was on diagrams and perspectives. I reproduced my physical model digitally in Rhino, exported views, and refined them in Illustrator.
The result was a set of drawings that emphasized material cadence, circulation, and atmosphere — showing how people might actually experience the spaces, not just how they were arranged.



Between the Frames


Next up, we got cinematic. The assignment asked us to design living spaces for two characters: L.B. Jeffries from Hitchcock’s Rear Window and Shige Kaneko from Ozu’s Tokyo Story.
Jeffries needed ramps for his wheelchair, while Shige needed her own private quarters. I imagined them running a shared magazine photography business: Shige styling clients in her salon downstairs, then sending them upstairs to Jeffries’ studio. The two domains met in a courtyard — part waiting area, part social threshold. It was a fun way to translate character studies into architecture.






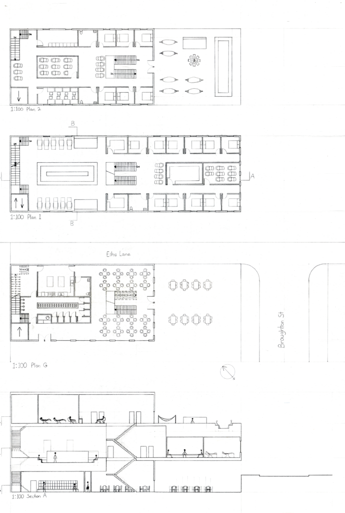
Between the Realms
This project expanded into the public realm with a bathhouse and landscape at Robson and Broughton in downtown Vancouver. I drew inspiration from Nordic spas and organized the program around the cycle Hot → Cold → Relax.
Hot pools, a sauna, and a steam room kicked things off. Cold plunge pools provided contrast. Finally, a salt cave, lounge chairs, and resting rooms offered spaces to unwind. A café anchored the social side of the project, while the site’s edge included bike parking, public washrooms, and an open grass park. Everything was hand-drawn on vellum, supported by physical models.







Design Media 1 – Narrative Drawing
In parallel, we were asked to create a narrative drawing that captured something our regular plans and sections couldn’t. For the bathhouse, I visualized the Hot → Cold → Relax cycle as a spatial sequence.
I modeled the design in Rhino, then layered drawings in Illustrator to combine orthographic precision with atmospheric perspectives. It was about showing not just the layout, but the ritual of moving through the spa.

Looking Back
What ties all these projects together is the idea that architecture isn’t just about walls and roofs — it’s about stories. Each assignment asked me to choreograph movement, balance public and private, and experiment with how drawings themselves can carry narrative.
From cardboard models to digital hybrids, I’ve learned that representation is never neutral. It’s part of the design. And that’s what makes this work so exciting.


Leave a Reply